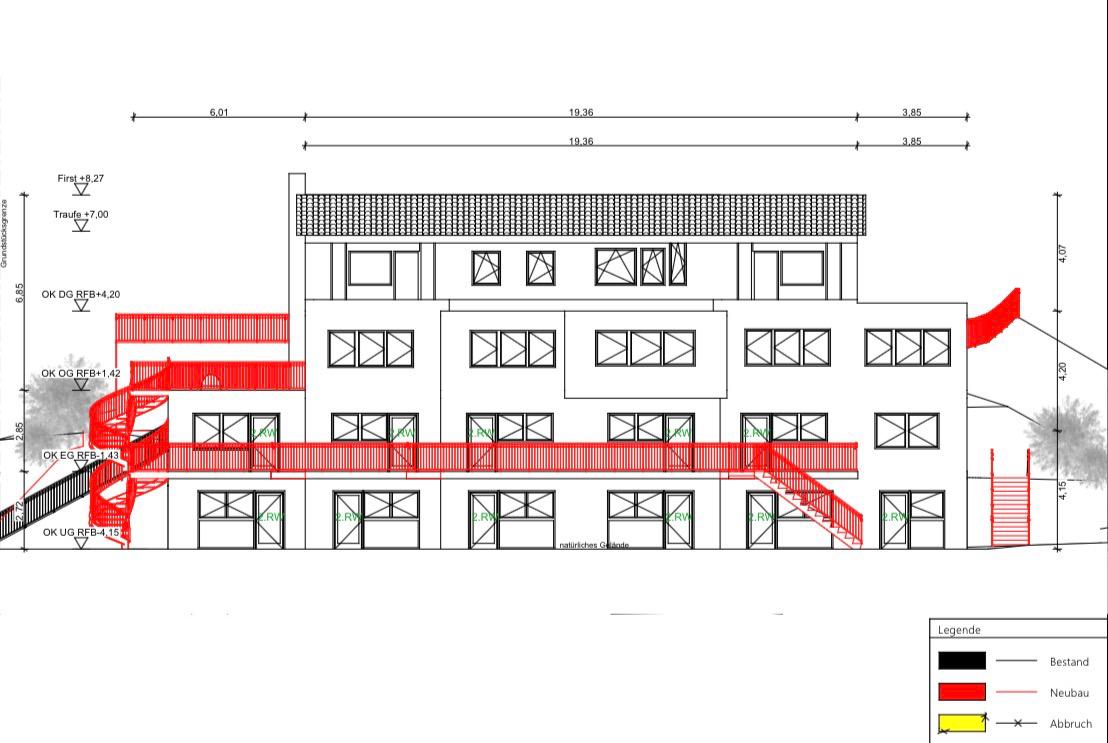
Projekt
Pflegeimmobilie Greifenstein
Greifenstein – in Planung
Aktueller Stand
Projektentwicklung
Baubeginn
Rohbau
Innenausbau
Außenanlagen
Bezug
Abgeschlossen
